30735 Calle Chueca

San Juan Capistrano, CA 92675

$ 420,000

Price

2

Beds

1.5

Baths

1,187 Sq. Ft.

$354 / Sq. Ft.

Zillow Price Estimate - $453,267

2558 Days On Market

Favorite

Share

Casitas Capistrano Building

Have You Been Pre-Qualified? Start Now

Listing provided by agent Casey Elliott at Ces Group Inc..

Last Updated: 2498 days ago

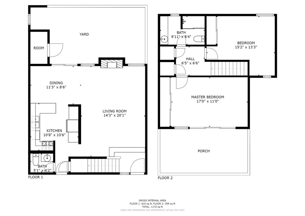
Live the Southern California Lifestyle to the fullest! This SFR was built in the sixties, and has a floorplan that was ahead of its time! Starting with the main floor, the living space has an oversized living room, fireplace, dining, kitchen, powder bath and hardscaped backyard. It’s perfect for entertaining year round. Upstairs features two over sized bedrooms and a master bath. The master bedroom has a huge porch to enjoy a morning cup of coffee or have a night cap. The home also has a convenient 2 car direct access garage. It’s really a blank slate and is just waiting for the right owner to come and make it their own with tons of potential. Short walk / bike ride to a historic downtown in San Juan Capistrano featuring fine dining, wine bars, cute shops, Movies, Starbucks, Amtrak station, and of course the Gorgeous Mission. Call Today!

Show More
Property Type Single Family Residence
Lot Size 1,530 sq. ft.
Year Built 1964
MLS # OC18282419
Listing Type Closed
Heating Central
Pool Community
Laundry In Garage
Parking Direct Garage Access
Gated Community No

Payment Calculator

40% Complete (success)
80% Complete (danger)
20% Complete
80% Complete (danger)
60% Complete (warning)
Principal and Interest
Property Taxes
Homeowners' Insurance
HOA Dues
Mortgage Insurance
Image Calculator Icon Customize Calculations | Compare Mortgage Rates

Property Details for: 30735 Calle Chueca

Interior Features

Bathroom Information
  • 1 full bath, 1 half bath
Additional Rooms
  • All Bedrooms Up
  • Two Masters
Laundry Information
  • In Garage
Fireplace Information
  • Living Room
Heating & Cooling
  • Central

Parking / Garage, Multi-Unit Information, Location Details

Parking Information
  • Direct Garage Access
Community Features
  • Units in Complex (Total) 187

Exterior Features

Pool & Spa Information
  • Community
  • Community
Building Information
  • Total Floors: 2

Property / Lot Details

Property Features
  • Neighborhood
Lot Information
  • Lot Size (Sq. Ft) 1,530
Property Information
  • Attached
  • Tax Parcel Number: 64902310

Recently Sold Homes Near 30735 Calle Chueca

Nearby Businesses

  • Grocery Stores
  • Drug Stores
  • Coffee Shops
  • Restaurants
  • Health & Medical
  • Fitness & Activity
  • Arts & Entertainment
  • Nightlife & Bars
    Browse all businesses in San Juan Capistrano, CA, 92675

    Tour This Condo

    FRIDAY

    26

    DEC

    SATURDAY

    27

    DEC

    SUNDAY

    28

    DEC

    MONDAY

    29

    DEC

    TUESDAY

    30

    DEC

    WEDNESDAY

    31

    DEC

    THURSDAY

    1

    JAN

    Schedule A Tour
    Ryan Case, Licensed Realtor & Team Lead

    Ryan Case

    Licensed Realtor & Team Lead

    949-570-4445 Contact Ryan Case
    Listing provided by agent Casey Elliott at Ces Group Inc..

    Last Updated: 2498 days ago