33122 Via La Pluma

San Juan Capistrano, CA 92675

$ 660,000

Price

3

Beds

2.5

Baths

1,650 Sq. Ft.

$400 / Sq. Ft.

Zillow Price Estimate - $660,003

2172 Days On Market

Favorite

Share

Mariners Village Building

Have You Been Pre-Qualified? Start Now

Listing provided by agent Liana Norman BRE# 01054256 at First Team Real Estate.

Last Updated: 2163 days ago

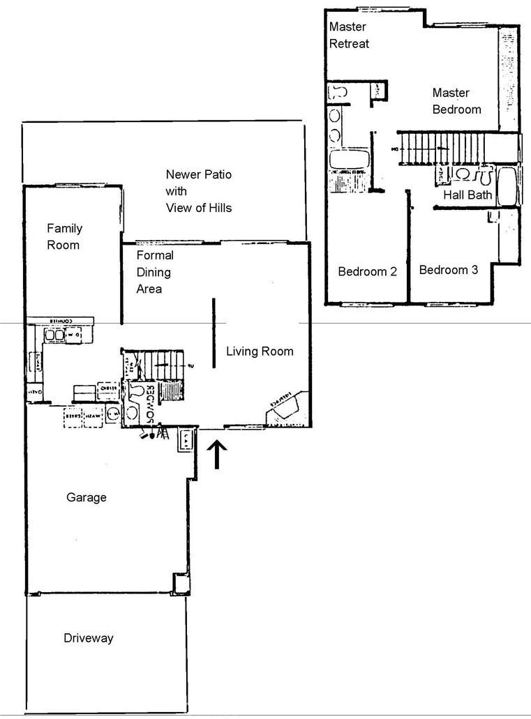
A great place to call home featuring loads of natural light and is the LARGEST MODEL with 3 bedrooms, 2.5 bathrooms, a Living and separate Family Room, plus a Master Bedroom retreat. Beautifully appointed home renovated a few years ago featuring an upgraded kitchen with stainless steel appliances and recessed lighting, upgraded bathroom vanities and lighting, toilets and shower doors, dual pane windows and sliders, newer furnace, raised panel interior doors and trim, most baseboards upgraded, enhanced fireplace, resurfaced patio and driveway, added lighting and windows, upgraded banister and more! Sits on a tiered lot with a view of the San Juan Hills through trees. Full driveway, duplex style, semi-attached end unit. Hurry on this one! Mariner Village is conveniently located within a short bike ride to Doheny Beach along the bike path that you can access at the end of Mariner Drive which leads you to the beach without having to cross Pacific Coast Hwy. Enjoy community parks, dog runs, kids tot lots close by as well. Mariner Village features a large community Lap Pool, Spa, Clubhouse, Tennis Courts and RV Parking (first come bases and extra fee). SHOWINGS LIMITED. CONTACT AN AGENT FOR MORE INFO.

Show More
Property Type Single Family Residence
Lot Size 1,386 sq. ft.
Year Built 1975
MLS # OC19282147
Listing Type Closed
Heating Forced Air
Cooling See Remarks
Pool Association, Indoor
Laundry Gas & Electric Dryer Hookup, In Garage
Parking Direct Garage Access, Driveway, Garage, Garage Door Opener, On Site, Public, RV Access/Parking
Gated Community No

Payment Calculator

40% Complete (success)
80% Complete (danger)
20% Complete
80% Complete (danger)
60% Complete (warning)
Principal and Interest
Property Taxes
Homeowners' Insurance
HOA Dues
Mortgage Insurance
Image Calculator Icon Customize Calculations | Compare Mortgage Rates

Property Details for: 33122 Via La Pluma

Interior Features

Bathroom Information
  • 2 full baths, 1 half bath
Additional Rooms
  • All Bedrooms Up
  • Family Room
  • Living Room
  • Master Bathroom
  • Master Bedroom
Laundry Information
  • Gas & Electric Dryer Hookup
  • In Garage
Fireplace Information
  • Living Room
  • Gas
  • Gas Starter
Interior Features
  • Cathedral Ceiling(s)
  • Crown Molding
  • Recessed Lighting
  • Stone Counters
  • Two Story Ceilings
Heating & Cooling
  • See Remarks
  • Forced Air

Parking / Garage, Multi-Unit Information, Location Details

Interior Information
  • Cathedral Ceiling(s)
  • Crown Molding
  • Recessed Lighting
  • Stone Counters
  • Two Story Ceilings
Parking Information
  • Direct Garage Access
  • Driveway
  • Garage
  • Garage Door Opener
  • On Site
  • Public
  • RV Access/Parking
Community Features
  • Units in Complex (Total) 199

Exterior Features

Pool & Spa Information
  • Association
  • Indoor
  • Association
Building Information
  • Total Floors: 2

Property / Lot Details

Property Features
  • Hills
  • Park/Greenbelt
  • Peek-A-Boo
  • Trees/Woods
Lot Information
  • Lot Size (Sq. Ft) 1,386
Property Information
  • Attached
  • Tax Parcel Number: 66819506

Recently Sold Homes Near 33122 Via La Pluma

Nearby Businesses

  • Grocery Stores
  • Drug Stores
  • Coffee Shops
  • Restaurants
  • Health & Medical
  • Fitness & Activity
  • Arts & Entertainment
  • Nightlife & Bars
    Browse all businesses in San Juan Capistrano, CA, 92675

    Tour This Condo

    FRIDAY

    23

    JAN

    SATURDAY

    24

    JAN

    SUNDAY

    25

    JAN

    MONDAY

    26

    JAN

    TUESDAY

    27

    JAN

    WEDNESDAY

    28

    JAN

    THURSDAY

    29

    JAN

    Schedule A Tour
    Ryan Case, Licensed Realtor & Team Lead

    Ryan Case

    Licensed Realtor & Team Lead

    949-570-4445 Contact Ryan Case
    Listing provided by agent Liana Norman BRE# 01054256 at First Team Real Estate.

    Last Updated: 2163 days ago