26517 Calle Lorenzo

San Juan Capistrano, CA 92675

$ 500,000

Price

3

Beds

1.75

Baths

1,450 Sq. Ft.

$345 / Sq. Ft.

Zillow Price Estimate - $453,458

2407 Days On Market

Favorite

Share

Have You Been Pre-Qualified? Start Now

Listing provided by agent Liana Norman at First Team Real Estate and Dustin Janisch at First Team Estates.

Last Updated: 2385 days ago

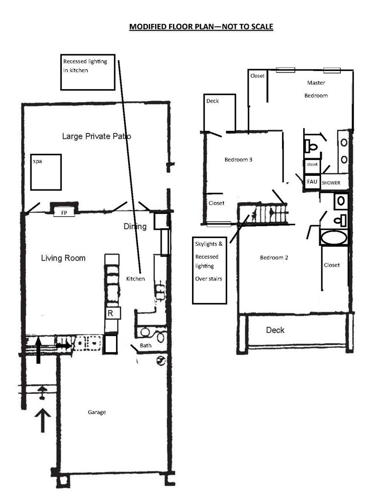
One of the lowest priced 3 Bedroom homes with over 1400 sqft around. This lovely two story end unit is one of the best homes in the Vista Fuente Tract of only 11 homes. Upgrades include enlarged remodeled kitchen and added windows, granite counters, recessed lighting, upgraded bathrooms and fireplace, added crown molding and large baseboards, skylights, central air conditioning and more! You will love the private backyard and above ground spa! Vista Fuente features a private grassy play area, great for throwing the ball to your kids or dogs! Close to JSerra High School, Churches and Old Town San Juan Capistrano. Easy access to Freeways and Toll Roads. See supplement for Floor Plan.

Show More
Property Type Single Family Residence
Lot Size 1,792 sq. ft.
Year Built 1966
MLS # OC19119139
Listing Type Closed
Heating Forced Air
Cooling Central Air
Pool Association, Indoor, See Remarks
Laundry In Garage
Parking Direct Garage Access, Garage, Garage Door Opener

Payment Calculator

40% Complete (success)
80% Complete (danger)
20% Complete
80% Complete (danger)
60% Complete (warning)
Principal and Interest
Property Taxes
Homeowners' Insurance
HOA Dues
Mortgage Insurance
Image Calculator Icon Customize Calculations | Compare Mortgage Rates

Property Details for: 26517 Calle Lorenzo

Interior Features

Bathroom Information
  • 1 full bath, 1 half bath, 1 three quarter bath
Additional Rooms
  • All Bedrooms Up
  • Walk-In Closet
Laundry Information
  • In Garage
Fireplace Information
  • Family Room
  • Gas
  • Gas Starter
Interior Features
  • Built-in Features
  • Crown Molding
  • Granite Counters
  • Living Room Deck Attached
  • Recessed Lighting
Heating & Cooling
  • Central Air
  • Forced Air

Parking / Garage, Multi-Unit Information, Location Details

Interior Information
  • Built-in Features
  • Crown Molding
  • Granite Counters
  • Living Room Deck Attached
  • Recessed Lighting
Parking Information
  • Direct Garage Access
  • Garage
  • Garage Door Opener

Exterior Features

Pool & Spa Information
  • Association
  • Indoor
  • See Remarks
  • Above Ground

Property / Lot Details

Property Features
  • Hills
Lot Information
  • Lot Size (Sq. Ft) 1,792
Property Information
  • Attached
  • Tax Parcel Number: 64905305

Nearby Businesses

  • Grocery Stores
  • Drug Stores
  • Coffee Shops
  • Restaurants
  • Health & Medical
  • Fitness & Activity
  • Arts & Entertainment
  • Nightlife & Bars
    Browse all businesses in San Juan Capistrano, CA, 92675

    Tour This Condo

    FRIDAY

    23

    JAN

    SATURDAY

    24

    JAN

    SUNDAY

    25

    JAN

    MONDAY

    26

    JAN

    TUESDAY

    27

    JAN

    WEDNESDAY

    28

    JAN

    THURSDAY

    29

    JAN

    Schedule A Tour
    Ryan Case, Licensed Realtor & Team Lead

    Ryan Case

    Licensed Realtor & Team Lead

    949-570-4445 Contact Ryan Case
    Listing provided by agent Liana Norman at First Team Real Estate and Dustin Janisch at First Team Estates.

    Last Updated: 2385 days ago